Appartement Paris 16e - 3 chambres - 126m²
75016 - Paris 16e
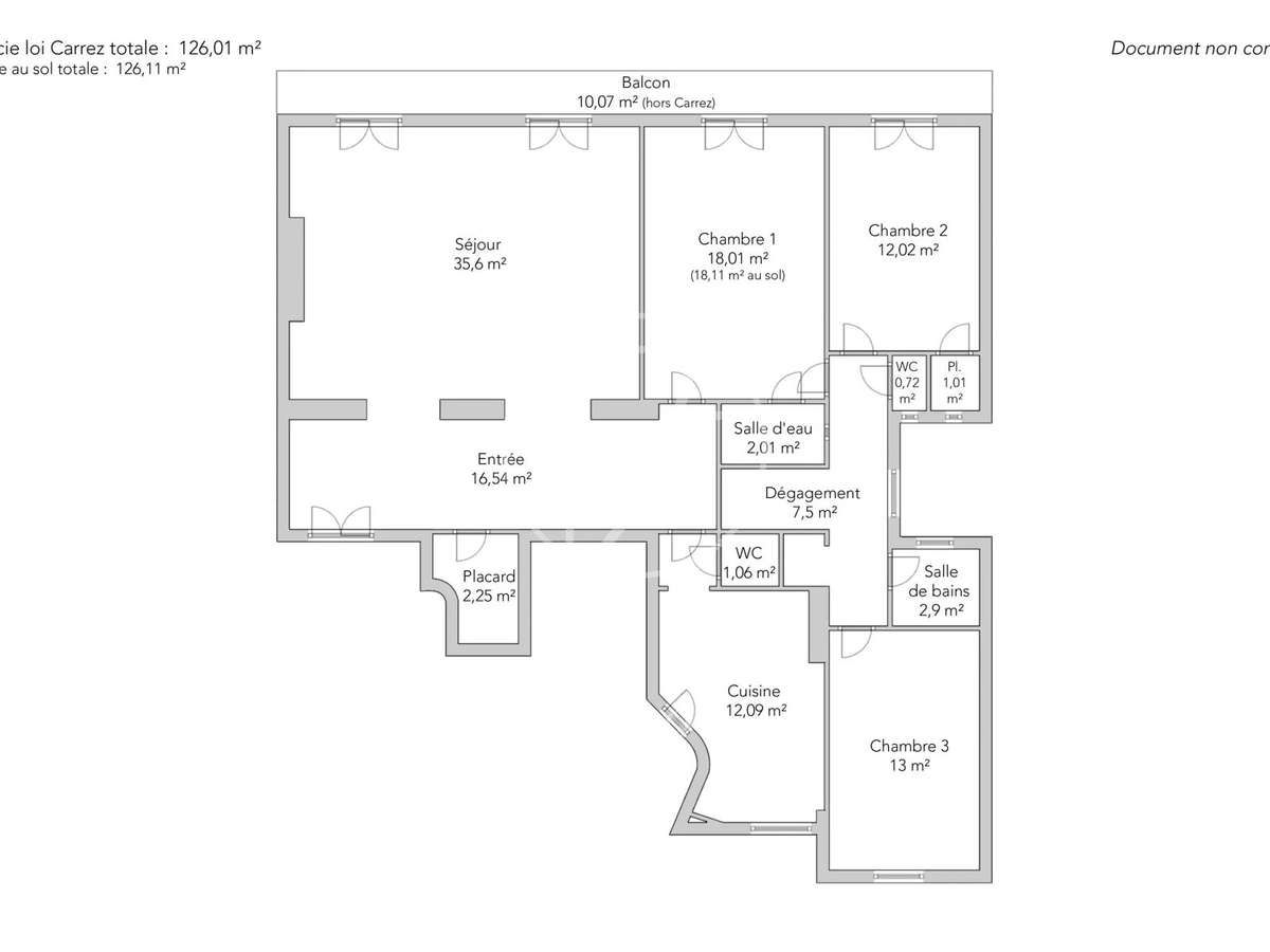
DESCRIPTIF
Traversant et très lumineux, cet élégant appartement de 126,01m² loi Carrez offre une vue dégagée.Situé dans un immeuble bourgeois d'inspiration Art déco construit en 1923 avec ascenseur, il a conservé tout le charme de l'époque avec parquet et cheminées.Il comprend uneentrée qui dessert un vaste double séjour ouvrant sur un balcon filant de 10m² exposé plein ouest, une cuisine indépendante, une penderie ainsi que des toilettes invités.Côté nuit, il propose trois chambres, dont une suite parentale avec salle de douche, une salle de bains et des toilettes séparées.Ce bien séduit par ses belles prestations, ses beaux volumes et son plan idéal.Deux caves complètent cette offre.Situé à proximité de l'église d'Auteuil, il est sectorisé Jean-Baptiste Say.
- Double séjour spacieux : Profitez d'une lumière naturelle abondante et d'un accès direct au balcon.
- Immeuble Art déco : Charme d'époque avec parquet et cheminées conservées.
Paris 16e - AUTEUIL - Appartement à vendre - 5 piè
Les informations sur les risques auxquels ce bien est exposé sont disponibles sur le site Géorisques :
Réf : 5841JASPEI - Date : 09/03/2026
LES ATOUTS
CARACTÉRISTIQUES
DIAGNOSTICS ENERGETIQUES
LOCALISATION
NOUS CONTACTER
DEMANDE D'INFORMATIONS
Demander plus d’informations à JUNOT JASMIN AUTEUIL.






















